Category
Brand
Knowledge
Standard
NBCHAO.Com SN: NB009675
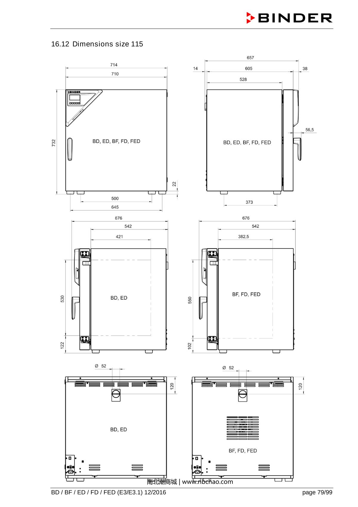
Binder ED260 Natural convection oven
The Binder ED260 natural convection Drying Oven adopts APT.line technology for precise temperature control, and the temperature control temperature can reach 300 ℃. The ED260 natural convection Electric Oven is equipped with 2 shelves.
Binder ED260 Natural convection oven
Key Spec.
Temperature range
RT+5~300℃
Volume
255L
Chamber material
stainless steel
ED260 Natural convection oven
Details
94 page unread, continue reading?
This manual is collected and sorted by the NBCLab, and does not guarantee the timeliness and accuracy. It is only for reference.
Continue to read
Recommended for more manual
1
Kenton 101-3S Pointer type electric Forced Air Drying Oven manual
2
Kenton KH-75T Digital electric air blowing dryer manual
3
Kenton 101-1AS + independent temperature limiter Digital Electric Forced Air Drying Oven manual
4
HuiTai DHG-9030A + independent temperature limit controller Blast Drying Oven manual
5
HongKe DHG-9030 Electric thermostatic Drying Oven manual
6
Kenton 101-3A Digital display electric Forced Air Drying Oven manual
7
BoZhen 101-2AS Digital stainless steel Drying Oven manual
8
TaiSiTe DZ-3AIV (with program mode) Vacuum Oven manual
9
sanfa DHG-9202-2A Electric thermostatic Drying Oven manual
10
HongKe DHG-9070 Electric thermostatic Drying Oven manual
©NBCLab.Com